Sylvie Becker
Property details :
Appartement - Diekirch
428 315 €
Ref. : 1309
Description
Residential project with 7 luxury apartments in the heart of Diekirch, at the corner of Rue Hury and Place Dechensgaard.
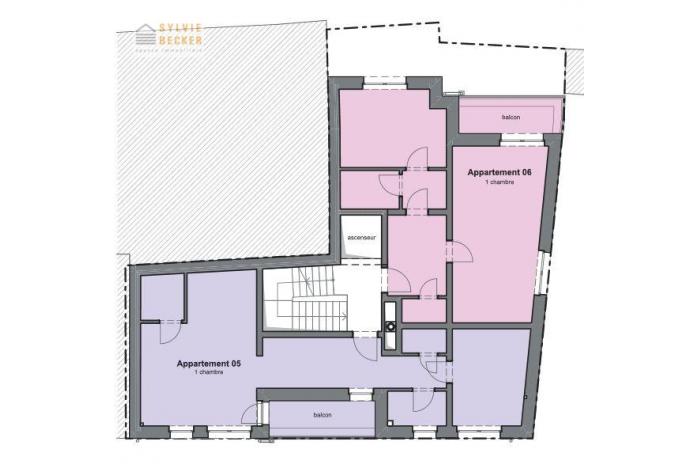
7 apartments for sale:
- 5 x 1 bed apartments (41m2 - 59m2)
- 2 x 2 bed apartments (82m2 - 104m2)
Prices between € 345,000 and € 756,000 (including 3% VAT). The agency fee is included in the selling price.
Main data:
- High standards specifications
- Large lift
- Floor heating
- Triple glazing
- Electric exterior shutters
- 2-way mechanical ventilation
- Large ground floor entrance facilitating access for people with reduced mobility
- Basement including private cellars and technical premises
- Rooms for bicycles and bins on the ground floor, easy to access
- Energy Certificate A-B-B
The apartments are provided without parking spaces. Parking spaces will be provided to residents by the municipality at Parking L'Esplanade (182m) for 120€ monthly.
The apartments will be delivered in the first half of 2021.

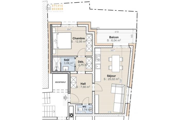
Apartment 06 – 2nd floor
Weighted Surface : 60.68m2 (apartment 54.64m2 + loggia)
Surface loggia: 6.04m2
Surface storage room: 5.95m2
Disposition :
- Entrance
- Living room 25m2
- bed room (13m2)
- Shower room
- Separate guest toilet
- Loggia 6m2
Features
  • Surface : 61.00m²
  • Availability : autre
  • Living room
  • Bathroom(s)
  • Shower bath(s)
  • Elevator
  • Floor heating
  • Electric blinds
  • Number of floor(s) : 3
  • Stage : 2
  • Entrance hall
  • Condensing Boiler
  • Handicapped accessible
  • Year of construction : 2020
  • Laundry room
  • Triple glazing
  • Central heating
  • Vmc double flow